公告公示
关于抚顺市自然资源局东洲分局核发天湖啤酒20万千升/年啤酒配套项目《建设工程规划许可证》的公示
来源:抚顺市自然资源局东洲分局浏览:1035次'时间:2025年11月24日
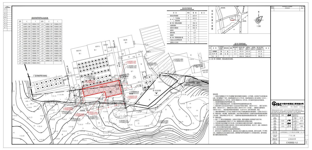
项目名称:天湖啤酒20万千升/年啤酒配套项目
工程概况:该建设项目位于抚顺市东洲区章党街。本项目此次共申报1个建筑物发酵罐区(建筑类别:厂房)为1层,建筑面积813.18平方米,计容建筑面积813.18平方米。
建设单位:辽宁天湖啤酒有限责任公司
设计单位:中国中轻国际工程有限公司
抚顺市自然资源局东洲分局 监督电话:58618107
公示日期:2025年11月24日至2025年12月2日



